Технологический процесс редуктора

Технологический процесс сборки редуктора. Технологическая схема сборки редуктора цилиндрического. Технологическая схема сборки редуктора двухступенчатого. Технологический процесс редуктора. Редуктор на технологической схеме.
Технологический процесс сборки редуктора. Технологическая схема сборки редуктора цилиндрического. Технологическая схема сборки редуктора двухступенчатого. Технологический процесс редуктора. Редуктор на технологической схеме.
Корпус редуктора техпроцесс изготовления. 001. Технологический процесс редуктора. Технологическая схема сборки редуктора двухступенчатого. Технологическая схема сборки конического редуктора.
Корпус редуктора техпроцесс изготовления. 001. Технологический процесс редуктора. Технологическая схема сборки редуктора двухступенчатого. Технологическая схема сборки конического редуктора.
Технологическая схема сборки редуктора цилиндрического. Технологический процесс редуктора. Техпроцесс детали вал сталь 45. Схема технологического процесса сборки редуктора. Технологическая схема сборки коническо-цилиндрического редуктора.
Технологическая схема сборки редуктора цилиндрического. Технологический процесс редуктора. Техпроцесс детали вал сталь 45. Схема технологического процесса сборки редуктора. Технологическая схема сборки коническо-цилиндрического редуктора.
Технологическая схема сборки редуктора двухступенчатого. Технологический процесс редуктора. Схема технологического процесса сборки редуктора. Схема технологического процесса сборки детали. Типовой технологический процесс изготовления корпуса.
Технологическая схема сборки редуктора двухступенчатого. Технологический процесс редуктора. Схема технологического процесса сборки редуктора. Схема технологического процесса сборки детали. Типовой технологический процесс изготовления корпуса.
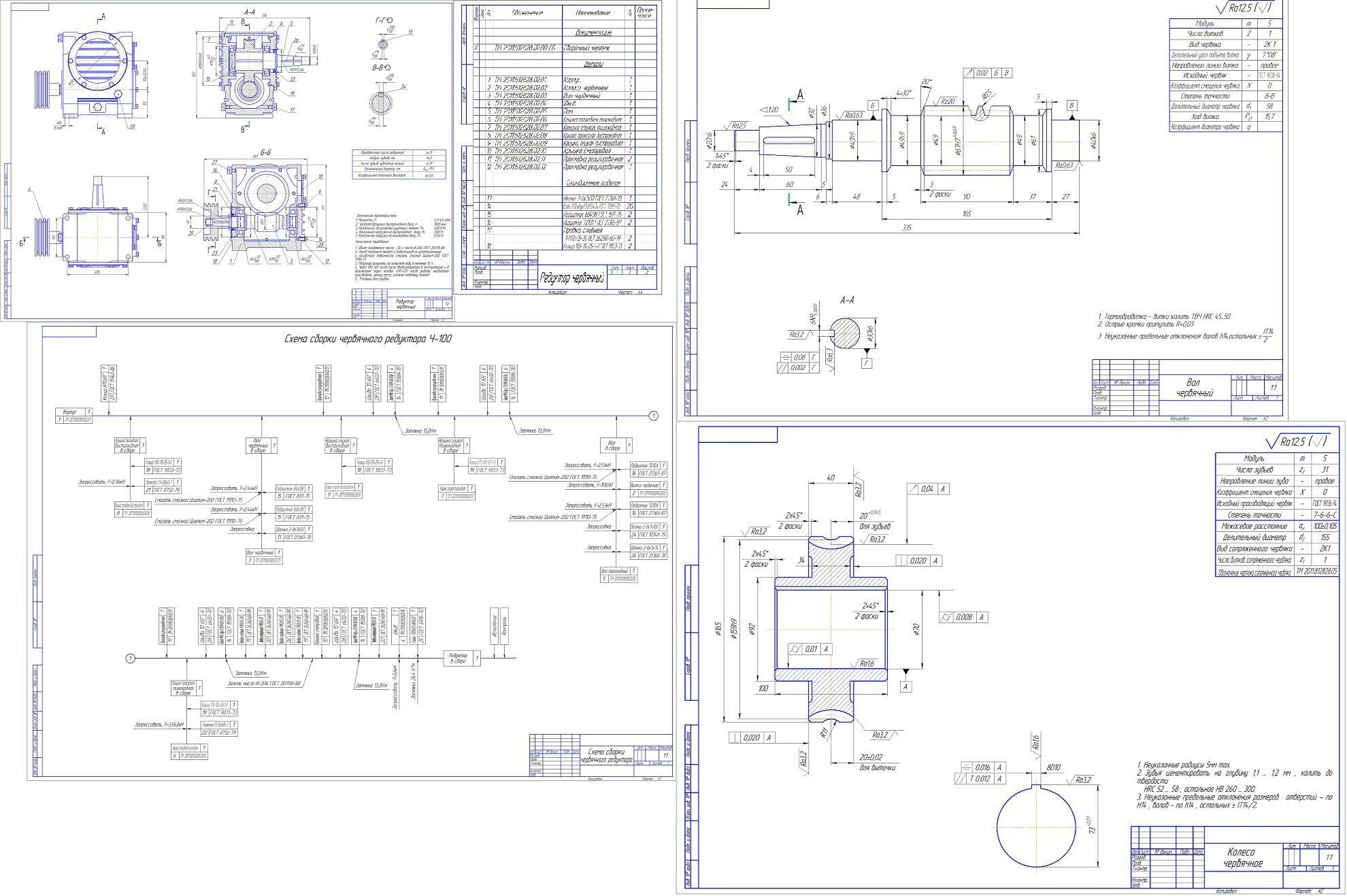
Технологическая схема сборки конического редуктора. Технологическая схема общей сборки червячного редуктора. Технологическая схема сборки редуктора двухступенчатого. Технологическая схема сборки червячного редуктора. Технологическая сборка вала червячного редуктора.
Технологическая схема сборки конического редуктора. Технологическая схема общей сборки червячного редуктора. Технологическая схема сборки редуктора двухступенчатого. Технологическая схема сборки червячного редуктора. Технологическая сборка вала червячного редуктора.
Технологический процесс редуктора. Технологический процесс редуктора. Технологический процесс редуктора. Технологический процесс редуктора. 006.
Технологический процесс редуктора. Технологический процесс редуктора. Технологический процесс редуктора. Технологический процесс редуктора. 006.
Схема сборки конического редуктора. Технологический процесс редуктора. Технологический процесс сборки редуктора. Маршрутная карта технологического процесса вала. Схема сборки технология машиностроения.
Схема сборки конического редуктора. Технологический процесс редуктора. Технологический процесс сборки редуктора. Маршрутная карта технологического процесса вала. Схема сборки технология машиностроения.
Технологический процесс редуктора. Червячный редуктор электронный блок техпроцесс. Технологический процесс редуктора. Технологическая схема сборки конического редуктора. Маршрутный технологический процесс сборки кондуктор.
Технологический процесс редуктора. Червячный редуктор электронный блок техпроцесс. Технологический процесс редуктора. Технологическая схема сборки конического редуктора. Маршрутный технологический процесс сборки кондуктор.
Техпроцесс вал редуктора станка псз-083. Технологический процесс редуктора. Технологическая схема сборки червячного редуктора. Схема технологического процесса сборки редуктора. Редуктор на технологической схеме.
Техпроцесс вал редуктора станка псз-083. Технологический процесс редуктора. Технологическая схема сборки червячного редуктора. Схема технологического процесса сборки редуктора. Редуктор на технологической схеме.
Схема сборки червячного редуктора. Схема технологического процесса сборки редуктора. Корпус редуктора техпроцесс изготовления. Технологический процесс редуктора. Технологическая сборка вала червячного редуктора.
Схема сборки червячного редуктора. Схема технологического процесса сборки редуктора. Корпус редуктора техпроцесс изготовления. Технологический процесс редуктора. Технологическая сборка вала червячного редуктора.
Чертеж корпуса червячного редуктора 02. Технологический процесс редуктора. Схема технологического процесса сборки редуктора. Крышка корпуса редуктора техпроцесс. Технологическая схема сборки конического редуктора.
Чертеж корпуса червячного редуктора 02. Технологический процесс редуктора. Схема технологического процесса сборки редуктора. Крышка корпуса редуктора техпроцесс. Технологическая схема сборки конического редуктора.
Технологический процесс редуктора. Составление схем сборки технология машиностроения. Схема сборки червячного редуктора. Технологическая схема сборки конического редуктора. Техпроцесс сборки узла.
Технологический процесс редуктора. Составление схем сборки технология машиностроения. Схема сборки червячного редуктора. Технологическая схема сборки конического редуктора. Техпроцесс сборки узла.
Технологическая схема сборки конического редуктора. Технологическая схема сборки редуктора цилиндрического. Маршрутный технологический процесс чертеж. Схема технологического процесса сборки редуктора. Технологический процесс редуктора.
Технологическая схема сборки конического редуктора. Технологическая схема сборки редуктора цилиндрического. Маршрутный технологический процесс чертеж. Схема технологического процесса сборки редуктора. Технологический процесс редуктора.
Технологическая схема сборки редуктора двухступенчатого. Техпроцесс обработки корпуса редуктора. Технологический процесс редуктора. Технологический процесс редуктора. Технологическая схема сборки конического редуктора.
Технологическая схема сборки редуктора двухступенчатого. Техпроцесс обработки корпуса редуктора. Технологический процесс редуктора. Технологический процесс редуктора. Технологическая схема сборки конического редуктора.
Схема сборки цилиндрического редуктора. Технологический процесс редуктора. Маршрутная карта сборки редуктора. Технологическая схема узловой сборки. Технологический процесс редуктора.
Схема сборки цилиндрического редуктора. Технологический процесс редуктора. Маршрутная карта сборки редуктора. Технологическая схема узловой сборки. Технологический процесс редуктора.
Техпроцесс корпуса редуктора. Техпроцесс обработки корпуса редуктора. Типовой технологический процесс вала. Схема сборки червячного редуктора. Схема сборки цилиндрического редуктора.
Техпроцесс корпуса редуктора. Техпроцесс обработки корпуса редуктора. Типовой технологический процесс вала. Схема сборки червячного редуктора. Схема сборки цилиндрического редуктора.
Схема технологического процесса сборки редуктора. Маршрутный технологический процесс сборки узла. Схема сборки конического редуктора. Технологическая схема сборки червячного редуктора. Технологический процесс редуктора.
Схема технологического процесса сборки редуктора. Маршрутный технологический процесс сборки узла. Схема сборки конического редуктора. Технологическая схема сборки червячного редуктора. Технологический процесс редуктора.
Технологическая схема сборки редуктора цилиндрического. Схема сборки червячного редуктора. Маршрутный технологический процесс сборки узла. Маршрутный технологический процесс чертеж. Технологическая схема общей сборки червячного редуктора.
Технологическая схема сборки редуктора цилиндрического. Схема сборки червячного редуктора. Маршрутный технологический процесс сборки узла. Маршрутный технологический процесс чертеж. Технологическая схема общей сборки червячного редуктора.
Технологическая схема сборки редуктора двухступенчатого. Технологический процесс редуктора. Технологический процесс редуктора. Технологическая схема сборки конического редуктора. Типовой технологический процесс изготовления корпуса.
Технологическая схема сборки редуктора двухступенчатого. Технологический процесс редуктора. Технологический процесс редуктора. Технологическая схема сборки конического редуктора. Типовой технологический процесс изготовления корпуса.
Схема сборки конического редуктора. Технологическая схема сборки конического редуктора. Технологический процесс редуктора. 001. Технологическая схема сборки редуктора цилиндрического.
Схема сборки конического редуктора. Технологическая схема сборки конического редуктора. Технологический процесс редуктора. 001. Технологическая схема сборки редуктора цилиндрического.